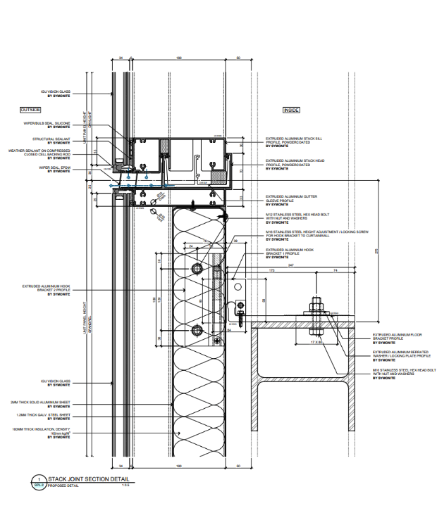
Unitised Curtain Wall System (SPL180)
The SPL180 Unitized Curtain Wall system is a high-performance, structurally glazed exterior façade system designed specifically to meet the stringent standards of Australia and New Zealand. It is a prefabricated, unitized system that is engineered for rapid, safe on-site installation, typically used for high-rise, commercial, and residential projects.
System Description & Key Features.
- System Structure: The system features 180mm depth aluminum profiles that can include thermal breaks for enhanced energy efficiency.
- Unitized Design: Panels are pre-assembled and glazed in a factory setting, reducing on-site labor by 10%–20%.
- Hidden Frame (SSG): A Structural Silicone Glazing (SSG) approach is used, resulting in a clean, flush exterior appearance with no visible aluminum frames, or a semi-hidden approach for specific aesthetic needs.
- Performance Standards: Designed for high resistance to wind loads, water-tightness, and seismic conditions common in Australia/New Zealand.
- Interlocking Panels: The units feature male/female interlocking mullions and transoms, which allow for thermal expansion and movement.



